標準化示例|如何配置施工現場臨時用電配電箱
標準化示例|如何配置施工現場臨時用電配電箱詳細資料由專業的低壓開關柜、低壓配電柜、低壓配電箱報價廠家為您提供。
配電箱(柜)適用于施工現場和室外臨時用電,應滿足“三級配電、二級漏電保護、一機一閘、一漏一箱”配電保護的使用要求。配電箱(柜)、開關箱的材料選擇、制造工藝、箱內電氣元件的選擇和配置應符合相關國家標準,產品應通過CCC認證。配電箱(機柜)外殼由冷軋鋼板制成,防雨、防塵、戶外。鋼板厚度符合標準要求,經久耐用。
配電箱(柜)、開關箱應分為N線、PE線端子板,進出線必須通過端子板可靠連接。N線端子板必須與金屬電氣安裝板絕緣。聚乙烯線路端子板必須與金屬電氣安裝板電連接。進線和出線中的N線必須通過N線端子板連接;聚乙烯線路必須通過聚乙烯線路端子板連接。聚乙烯線路和端子板之間的連接必須采用電氣連接。電氣連接點的數量應該比盒子中的回路數量多2個。一個是PE線進入接線盒的連接點,另一個是重復接地的連接點。
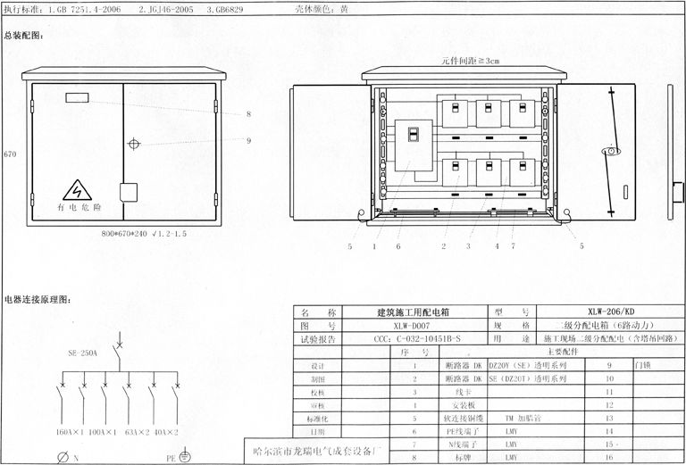
三級配電設置示例
一個
總計配電箱(機柜)
主開關設置DZ20型透明塑殼斷路器,隔離功能為400A-630A,分路設置8路。采用具有隔離功能的DZ20系列160A-250A透明塑殼斷路器,設置DZ20L(DZ15L)透明漏電開關或LBM-1系列作為漏電保護裝置,具有欠壓、過載、短路、漏電和斷相保護功能,同時配備電能表、電壓表、電流表和兩組電流互感器。漏電保護裝置的額定漏電動作電流與額定漏電動作時間的乘積不應大于30毫安秒,較好選擇額定漏電動作電流為7150毫安,額定漏電動作時間大于0.1S且小于等于0.2S,動作時間為延時動作類型。

總計配電柜示意圖

總計配電柜端子板接觸圖

總計配電柜機柜門電氣連接點圖

四回路配電柜電氣系統圖

六個電路配電柜電氣系統圖

八個電路配電柜電氣系統圖
二
得分配電箱
1
包括照明回路分配電箱(電源回路和照明回路分流配電)
DZ20系列透明塑殼斷路器,內置200A-250A隔離功能,作為主開關(適用于total 配電箱并聯斷路器);電源分路和照明分路控制開關采用DZ20或KDM-1型透明塑殼斷路器。DZ20或KDM-1透明塑殼斷路器用作每個配電電路的控制開關。PE線連接螺栓和N線連接螺栓應根據實際需要配置。

點配電箱示意圖

點配電箱N線端子板接觸圖點配電箱PE線端子板接觸圖

點配電箱電氣系統圖

包括塔吊回路分配電箱示意圖
(端子板觸點和電氣連接點的示意圖同上)

包括塔吊回路點配電箱系統圖
2
不包括照明電路得分配電箱

8個電路點配電箱原理圖
6個電路點配電箱包括塔式起重機電路
(端子板觸點和電氣連接點的示意圖同上)

8個循環點配電箱系統圖

6回路包括塔吊回路配電箱系統圖
三
開關盒(一臺機器,一個制動器,一個泄漏,一個盒子)
1
地面泵等大型設備的電源開關箱
配備KDM1或DZ20(160 A及380V以上)系列透明塑殼斷路器作為控制開關,配置DZ20L系列透明漏電斷路器或LBM-1系列漏電斷路器。聚乙烯線路端子排由3個連接螺栓組成。

地泵等大型設備開關箱示意圖

地泵等大型設備電氣系統圖
2
塔式起重機及其他設備的電源開關箱
配備KDM1或DZ20(160 A及380V以上)系列透明塑殼斷路器作為控制開關,配置DZ20L系列透明漏電斷路器或LBM-1系列漏電斷路器。聚乙烯線路端子排由3個連接螺栓組成。

塔式起重機及其他設備電源開關箱示意圖

塔式起重機等動力設備的開關箱系統圖。
3
3.0千瓦以下電氣設備開關箱
DZ20(40A,380V)或SE、KDMI系列透明塑料外殼斷路器作為控制開關,DZ15LE(40A)或LBM1系列透明漏電斷路器,PE線端子排為4個連接螺栓。

40A以下電源開關箱示意圖

電源開關箱端子觸點和電氣觸點連接圖

40A以下設備電氣開關箱電氣系統圖
4
5.5千瓦以上電氣設備開關箱
根據受控設備的額定容量選擇控制開關和漏電斷路器。控制開關為DZ20(SE或KDM1)系列透明塑料外殼斷路器,漏電斷路器為DZ15L系列透明串聯漏電斷路器。聚乙烯電線連接有3個螺栓。
2
5.5千瓦以上設備開關箱示意圖

5.5千瓦以上設備開關箱電氣系統圖
5
照明開關盒
配有KDMT/2 (40A)斷路器、DZ15L
40/290-40/290漏電斷路器和3個聚乙烯線螺栓。

照明開關箱示意圖

照明開關箱電氣系統圖
注:開關箱內漏電斷路器必須選用額定漏電動作電流不大于30mA、額定漏電動作時間不大于0.1S、電流速斷和電磁電機保證產品。
total 配電箱中型漏電斷路器應為配電保護產品。
配電室布局應符合下列要求
(1) 配電柜前方作業通道寬度,單行或雙排背靠背布置不小于1.5m,雙排面對面布置不小于2m。
(2) 配電柜后面的維修通道寬度,單行布置或雙排面對面布置不小于0.8m,雙排背靠背布置不小于1.5m,如果某些地方有建筑結構突出部分,該通道寬度可減少0.2m..
(3) 配電柜側維修通道的寬度不得小于1m。
(4)配電室屋頂與地面的距離不得小于3m。
配電箱安裝應滿足以下要求
(a)固定配電箱,開關箱盒中心與地面垂直距離為1.4~1.6m..移動盒與地面的垂直距離為0.8~1.6m..配電箱時,開關箱應安裝在牢固穩定的支架上。
(2) 配電箱,開關箱在建筑物下降半徑或塔吊臂旋轉半徑內必須做雙層防護棚,并有隔離措施。
【附件】施工臨時用電管理要點
一個
臨時用電管理
(一)施工現場操作電工必須按現行國家標準考試合格,持證上崗。
(二)各類用電用戶必須通過相關安全教育培訓和技術交底,掌握安全用電的基本知識和所用設備的性能,考試合格后方可上崗。
(三)臨時電氣設備和線路的安裝、檢查、維護或拆除必須由電工完成,并應有人監護。
(四)臨時用電組織設計的規定:
1)施工現場臨時用電設備5臺以上或總容量50kW以上時,應編制用電組織設計;否則,應制定安全用電和電氣防火措施。
2)裝飾裝修工程或其他特殊施工階段,應編制單項施工用電方案。
(5)臨時用電機構的設計和變更必須由電氣工程技術人員編制,經有關部門審核,法人企業技術負責人批準,經現場監理簽字認可后實施。
(六)臨時用電項目必須經編制、審批部門和使用單位共同驗收,合格后方可投入使用。
(7)臨時用電項目的定期檢查應按分部、分項工程進行。必須及時處理安全隱患,并執行復檢和驗收程序。
(8)室外220伏燈具離地面不得小于3米,室內不得小于2.5米..
二
強制性條款
《施工現場臨時用電安全技術規范》JGJ42005的強制性規定:
(1)施工現場臨時供電工程中性點直接接地的220/380伏三相四線制低壓電力系統必須滿足以下要求:采用三級配電系統;采用全自動零保護系統;采用二次漏電保護系統。
(2)施工現場使用專用變壓器、TN-S接零保護供電系統時,電氣設備的金屬外殼必須與保護零線連接。保護零線應從工作接地線、配電室(總計配電箱)電源側零線或總漏電保護器電源側零線引出。
(3)當施工現場與外部電路共用同一供電系統時,電氣設備的接地和接零保護應與原系統保持一致,設備的任何部分不得接零保護,另一部分應接地保護。
(4)TN-S系統中的保護零線必須在配電室或total 配電箱處重復接地,也必須在配電系統的中部和端部重復接地。
(5) 配電柜應安裝電源隔離開關和短路、過載和漏電保護器。電源隔離開關關閉時,應有明顯的斷點。
(6) 配電箱電氣安裝板必須分為N線端子板和PE線端子板。N線端子板必須與金屬電氣安裝板絕緣。聚乙烯線路端子板必須與金屬電氣安裝板電連接。
(7) 配電箱,開關箱電源入口端嚴禁使用插頭和插座主動連接。
(8)清理、檢查和維護混凝土攪拌機、鋼筋加工機械、木工機械、盾構機械等設備時,必須關閉開關箱,電源斷開點清晰可見,門必須關閉并上鎖。
(九)下列特殊場所應使用安全低壓照明器:
1)電源電壓不應大于36V用于隧道、人防工程、高溫、導電粉塵、潮濕或距離地面2.5m以下的燈具等場所的照明。
2)電源電壓不大于24V用于潮濕和易接近帶電體的照明。
3)在特別潮濕的地方、導電地面、鍋爐或金屬容器內照明時,電源電壓不得大于12V。
(十)照明變壓器必須使用雙繞組式安全隔離變壓器,嚴禁使用自耦變壓器。
(11)在建工程和影響飛機或車輛夜間通行的機械設備,必須設置醒目的紅色信號燈。電源應位于施工現場主電源開關的前側,外部電路電源停止時應設置應急自備電源。
(來源:魯班建筑工程聯盟,入侵和刪除)
更多選型規格報價定制等問題可及時聯系廠家,以上就是標準化示例|如何配置施工現場臨時用電配電箱全部內容。
- 上一篇:如果你買這個配電箱,你就有大麻煩了!
- 下一篇:土建配電箱零排和接地排之間的差異
